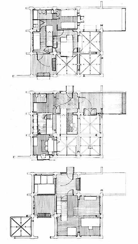
Substracciones de G. Matta-Clark y, detrás, plantas de la unidad sudeste del proyecto.